Skip To Content

113 S Woodland Boulevard

Deland, FL 32720
  • $1,495,000
  • STATUS: Active
  • ON SITE: 336 Days
  • MLS #: V4939792
UPDATED: 69 min ago
$1,495,000
  • 0
    BEDS
  • 0.38
    ACRES
  • 0
    BATHS
  • 0
    1/2 BATHS
Neighborhood:
Type:
Vacant Land / Lots
County:
Area:

School Ratings & Info

Description

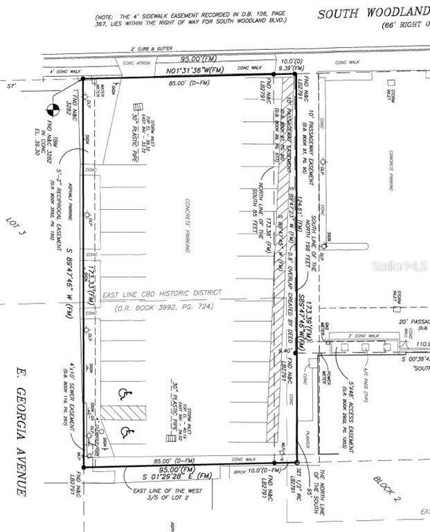
Prime commercial parcel in the center of historic downtown DeLand. Practically at the corner of "Main and Main," this property represents a rare opportunity for development in the heart of DeLand's award winning downtown core. This parcel is zoned "C-2A DOWNTOWN COMMERCIAL DISTRICT" which allows for a myriad of potential uses and development options. Parcel is surrounded by retail, professional offices, as well as substantial public parking. Multiple mixed residential/commercial projects have either been recently built or are in the approval stages in downtown DeLand, and none are as close to the center of downtown as this parcel. Parcel is completely paved with concrete and is currently utilized as a parking lot under short term leases. **All information believed to be correct, but Buyer shall be ultimately responsible for verification of all material facts**

Monthly Payment Calculator




© 2025 My Florida Regional MLS DBA Stellar MLS. All rights reserved. All listings displayed pursuant to IDX. All listing information is deemed reliable but not guaranteed and should be independently verified through personal inspection by appropriate professionals. Listings displayed on this website may be subject to prior sale or removal from sale; availability of any listing should always be independently verified. Listing information is provided for consumers personal, non-commercial use, solely to identify potential properties for potential purchase; all other use is strictly prohibited and may violate relevant federal and state law. Data last updated 2025-11-08T06:49:22.783.
www.propertyinjax.com/homes/158552642
Print Image

113 S Woodland Boulevard Deland, FL 32720

  • Price: $1,495,000
  • Status: Active
  • On Site: 336 Days
  • Updated: 69 min ago
  • MLS #: V4939792
0
Beds
0
Baths
0
½ Baths
0.38
Acres
Neighborhood:
Howrys Add Deland
County:
Volusia
Area:
Deland
Property Description
Prime commercial parcel in the center of historic downtown DeLand. Practically at the corner of "Main and Main," this property represents a rare opportunity for development in the heart of DeLand's award winning downtown core. This parcel is zoned "C-2A DOWNTOWN COMMERCIAL DISTRICT" which allows for a myriad of potential uses and development options. Parcel is surrounded by retail, professional offices, as well as substantial public parking. Multiple mixed residential/commercial projects have either been recently built or are in the approval stages in downtown DeLand, and none are as close to the center of downtown as this parcel. Parcel is completely paved with concrete and is currently utilized as a parking lot under short term leases. **All information believed to be correct, but Buyer shall be ultimately responsible for verification of all material facts**
Exterior Features

Lot Size Dimensions 95 x 173 Road Frontage Type State Road Road Surface Type Paved Water Access Yn No Water Extras Yn No Water View Yn No Waterfront Feet Total 0 Waterfront Yn No

Interior Features

Sewer Public Sewer Water Source Public

Property Features

Association Yn No Current Use Commercial Flood Zone Code X For Lease Yn No Listing Terms CashConventionalLease OptionLease PurchaseOwner May Carry Ownership Fee Simple Realtor Info As-IsCurrently LeasedList Agent is OwnerSurvey Available Special Listing Conditions None Tax Annual Amount 9243 Total Annual Fees 0 Total Monthly Fees 0 Utilities BB/HS Internet AvailableCable AvailableElectricity AvailableNatural Gas AvailableSewer Available Zoning 05C2


Listing information © 2025 My Florida Regional MLS DBA Stellar MLS..
Listing provided courtesy of GREENE REALTY OF FLORIDA LLC: 386-734-2200.



© 2025 My Florida Regional MLS DBA Stellar MLS. All rights reserved. All listings displayed pursuant to IDX. All listing information is deemed reliable but not guaranteed and should be independently verified through personal inspection by appropriate professionals. Listings displayed on this website may be subject to prior sale or removal from sale; availability of any listing should always be independently verified. Listing information is provided for consumers personal, non-commercial use, solely to identify potential properties for potential purchase; all other use is strictly prohibited and may violate relevant federal and state law. Data last updated 2025-11-08T06:49:22.783.
 
https://bt-photos.global.ssl.fastly.net/mfr/orig_boomver_1_V4939792-2.jpg https://bt-photos.global.ssl.fastly.net/mfr/orig_boomver_1_V4939792-2.jpg https://bt-photos.global.ssl.fastly.net/mfr/orig_boomver_1_V4939792-2.jpg
Logo
United Real Estate Gallery
8380 Baymeadows Road Suite 17
Jacksonville FL, 32256