Skip To Content

1233 47TH Avenue N

St Petersburg, FL 33703
  • $1,695,000
  • STATUS: Pending
  • ON SITE: 89 Days
  • MLS #: TB8438885
Pending
UPDATED: 68 min ago
$1,695,000
  • 4
    BEDS
  • 0.2
    ACRES
  • 4
    BATHS
  • 0
    1/2 BATHS
  • 3,017
    SQFT
  • $562
    $/SQFT
Neighborhood:
Type:
Single-Family Home
Built:
2026
County:
Area:

School Ratings & Info

Description

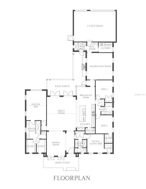
Under contract-accepting backup offers. Pre-Construction. To be built. Est. Completion: Jan 2027. Would you love to live in St. Petersburg’s coveted Euclid Heights in a SINGLE-STORY HOME? Here’s your chance to make that dream a reality with Canopy Builders – St. Petersburg’s most TRUSTED name in luxury home construction. Located in a NON-FLOOD AND NON-EVACUATION ZONE, this brand-new ALL BLOCK build sits on an expansive lot measuring 70 x 127 sq ft and offers 4 Bedrooms + Study + Recreation room, 4 Baths, and an oversized 3-car garage. The main residence boasts a total of 3,033 sq ft under air. Surrounded by the neighborhood’s charming tree lined streets, this home blends modern luxury with timeless character. All of this, just a 10-minute drive to downtown St. Pete. Buyers currently have an EXCLUSIVE opportunity to personalize this home with the expertise of an in-house designer from the Canopy Builders team—but this chance won’t last long. A generous design allowance allows for the selection of customized finishes, ensuring every detail aligns seamlessly with the home's luxury specifications. Entering through the front corridor, you’re welcomed into the spacious great room, featuring vaulted ceilings. Off the great room sits the formal dining room and kitchen, complete with a breakfast nook, pantry, gas oven and range, and a large center island ideal for both cooking and gathering. The primary suite, located off the great room, also offers vaulted ceilings, dual closets, and a luxurious en suite bathroom with dual vanities. Featuring a split floor plan, the study or guest bedroom includes a full closet and a detached bathroom for added flexibility. Bedrooms two and three share a bathroom, providing both function and privacy. Toward the back of the home, a recreation room offers multipurpose space—perfect for entertaining, hobbies, or a playroom. Beyond the recreation room, you’ll find a full pool bathroom with shower, a mudroom with built-in cabinetry, and a laundry room with a sink for everyday convenience. Outside, double doors from the great room open to the covered back porch, featuring an outdoor kitchen—ideal for relaxing or entertaining by the pool. Several key features have already been planned including a tankless gas water heater, impact-resistant windows, and engineered hardwood flooring throughout. Additional luxury elements include 10’ ceilings throughout , 12’ ceilings in the great room and primary bedroom, as well as 8’ interior doors. Canopy’s signature gas sconce adds an elegant touch to the front porch. The large backyard offers ample space for lounging and entertaining. Enjoy a 10 minute drive to downtown St. Pete, 20-minute drive to St. Pete Beach and only 20 minutes to Tampa. Don’t miss the opportunity to make this breathtaking home yours today!

Monthly Payment Calculator




© 2026 My Florida Regional MLS DBA Stellar MLS. All rights reserved. All listings displayed pursuant to IDX. All listing information is deemed reliable but not guaranteed and should be independently verified through personal inspection by appropriate professionals. Listings displayed on this website may be subject to prior sale or removal from sale; availability of any listing should always be independently verified. Listing information is provided for consumers personal, non-commercial use, solely to identify potential properties for potential purchase; all other use is strictly prohibited and may violate relevant federal and state law. Data last updated 2026-01-15T21:45:42.577.
www.propertyinjax.com/homes/169007241
Print Image

1233 47TH Avenue N St Petersburg, FL 33703

  • Price: $1,695,000
  • Status: Pending
  • On Site: 89 Days
  • Updated: 68 min ago
  • MLS #: TB8438885
4
Beds
4
Baths
0
½ Baths
0.2
Acres
3,017
SQFT
$562
$/SQFT
2026
Built
Neighborhood:
Emmons Grovemont Pt Rep
County:
Pinellas
Area:
St Pete
Property Description
Under contract-accepting backup offers. Pre-Construction. To be built. Est. Completion: Jan 2027. Would you love to live in St. Petersburg’s coveted Euclid Heights in a SINGLE-STORY HOME? Here’s your chance to make that dream a reality with Canopy Builders – St. Petersburg’s most TRUSTED name in luxury home construction. Located in a NON-FLOOD AND NON-EVACUATION ZONE, this brand-new ALL BLOCK build sits on an expansive lot measuring 70 x 127 sq ft and offers 4 Bedrooms + Study + Recreation room, 4 Baths, and an oversized 3-car garage. The main residence boasts a total of 3,033 sq ft under air. Surrounded by the neighborhood’s charming tree lined streets, this home blends modern luxury with timeless character. All of this, just a 10-minute drive to downtown St. Pete. Buyers currently have an EXCLUSIVE opportunity to personalize this home with the expertise of an in-house designer from the Canopy Builders team—but this chance won’t last long. A generous design allowance allows for the selection of customized finishes, ensuring every detail aligns seamlessly with the home's luxury specifications. Entering through the front corridor, you’re welcomed into the spacious great room, featuring vaulted ceilings. Off the great room sits the formal dining room and kitchen, complete with a breakfast nook, pantry, gas oven and range, and a large center island ideal for both cooking and gathering. The primary suite, located off the great room, also offers vaulted ceilings, dual closets, and a luxurious en suite bathroom with dual vanities. Featuring a split floor plan, the study or guest bedroom includes a full closet and a detached bathroom for added flexibility. Bedrooms two and three share a bathroom, providing both function and privacy. Toward the back of the home, a recreation room offers multipurpose space—perfect for entertaining, hobbies, or a playroom. Beyond the recreation room, you’ll find a full pool bathroom with shower, a mudroom with built-in cabinetry, and a laundry room with a sink for everyday convenience. Outside, double doors from the great room open to the covered back porch, featuring an outdoor kitchen—ideal for relaxing or entertaining by the pool. Several key features have already been planned including a tankless gas water heater, impact-resistant windows, and engineered hardwood flooring throughout. Additional luxury elements include 10’ ceilings throughout , 12’ ceilings in the great room and primary bedroom, as well as 8’ interior doors. Canopy’s signature gas sconce adds an elegant touch to the front porch. The large backyard offers ample space for lounging and entertaining. Enjoy a 10 minute drive to downtown St. Pete, 20-minute drive to St. Pete Beach and only 20 minutes to Tampa. Don’t miss the opportunity to make this breathtaking home yours today!
Exterior Features

Attached Garage Yn Yes Carport Yn No Construction Materials BlockStucco Covered Spaces 3 Direction Faces South Exterior Features Irrigation SystemLightingOutdoor GrillOutdoor KitchenPrivate MailboxRain GuttersSidewalkSprinkler Metered Foundation Details Slab Lot Size Dimensions 70 x 127 Pool Private Yn No Road Surface Type Paved Roof Shingle Water Access Yn No Water Extras Yn No Water View Yn No Waterfront Feet Total 0 Waterfront Yn No

Interior Features

Appliances DishwasherDisposalExhaust FanGas Water HeaterMicrowaveRangeRange HoodRefrigeratorTankless Water Heater Building Area Total 4015 Cooling Central Air Cooling YN Yes Fireplace Yn No Flooring Engineered HardwoodTile Heating Central Heating YN Yes Interior Features Crown MoldingEating Space In KitchenHigh CeilingsIn Wall Pest SystemKitchen/Family Room ComboOpen FloorplanPrimary Bedroom Main FloorSolid Surface CountersSolid Wood CabinetsStone CountersThermostatWalk-In Closet(s) Laundry Features InsideLaundry Room Levels One Sewer Public Sewer Stories Total 1 Water Source Public

Property Features

Association Yn No Builder Name Canopy Builders Cdd Yn No Down Payment Resource No Flood Zone Code X Floor Number 1 Garage Yn Yes Homestead Yn No Lease Considered YN Yes Lease Restrictions YN No Listing Terms CashConventionalFHAVA Loan Minimum Lease No Minimum New Construction Yn Yes Ownership Fee Simple Projected Completion Date 10/31/2026 4:00:00 AM Property Condition Pre-Construction Property Sub Type Single Family Residence Required Remarks Under contract-accepting backup offers. Pre-Construction. To be built. Senior Community Yn No Special Listing Conditions None Tax Annual Amount 905.67 Total Annual Fees 0 Total Monthly Fees 0 Utilities Public


Listing information © 2026 My Florida Regional MLS DBA Stellar MLS..
Listing provided courtesy of COMPASS FLORIDA LLC: 727-339-7902.



© 2026 My Florida Regional MLS DBA Stellar MLS. All rights reserved. All listings displayed pursuant to IDX. All listing information is deemed reliable but not guaranteed and should be independently verified through personal inspection by appropriate professionals. Listings displayed on this website may be subject to prior sale or removal from sale; availability of any listing should always be independently verified. Listing information is provided for consumers personal, non-commercial use, solely to identify potential properties for potential purchase; all other use is strictly prohibited and may violate relevant federal and state law. Data last updated 2026-01-15T21:45:42.577.
 
https://bt-photos.global.ssl.fastly.net/mfr/orig_boomver_1_TB8438885-2.jpg
Logo
United Real Estate Gallery
8380 Baymeadows Road Suite 17
Jacksonville FL, 32256