Skip To Content

631 Bentley North Drive

Auburndale, FL 33823
  • $298,900
  • STATUS: Closed
  • ON SITE: 561 Days
  • MLS #: L4946671
Sold - 06/30/2025
$298,900
SOLD - 06/30/2025
  • 3
    BEDS
  • 0.14
    ACRES
  • 2
    BATHS
  • 0
    1/2 BATHS
  • 1,479
    SQFT
  • $0
    $/SQFT
Neighborhood:
Type:
Single-Family Home
Built:
2024
County:
Area:

School Ratings & Info

Description

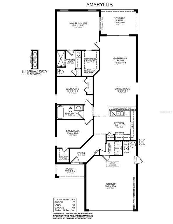
New construction home with 1,479 square feet on one-story including 3 bedrooms, 2 baths, and an open living area. Enjoy an open kitchen with Samsung stainless steel appliances, pantry, and a spacious counter height bar, fully open to the dining caf and gathering room. The living area, laundry room, and baths include luxury wood vinyl plank flooring, with stain-resistant carpet in the bedrooms. Your owner's suite is complete with a walk-in wardrobe and a private en-suite bath with a tiled shower and linen closet. Plus, enjoy a covered lanai, 2-car garage, custom-fit window blinds, architectural shingles, energy-efficient insulation and windows, and a full builder warranty.

Monthly Payment Calculator




© 2026 My Florida Regional MLS DBA Stellar MLS. All rights reserved. All listings displayed pursuant to IDX. All listing information is deemed reliable but not guaranteed and should be independently verified through personal inspection by appropriate professionals. Listings displayed on this website may be subject to prior sale or removal from sale; availability of any listing should always be independently verified. Listing information is provided for consumers personal, non-commercial use, solely to identify potential properties for potential purchase; all other use is strictly prohibited and may violate relevant federal and state law. Data last updated 2026-02-18T23:46:30.58.
www.propertyinjax.com/homes/153375148
Print Image

631 Bentley North Drive Auburndale, FL 33823

  • Price: $298,900
  • Status: Closed
  • On Site: 561 Days
  • Updated: 113 min ago
  • MLS #: L4946671
3
Beds
2
Baths
0
½ Baths
0.14
Acres
1,479
SQFT
$0
$/SQFT
2024
Built
Neighborhood:
Bentley North
County:
Polk
Area:
Auburndale
Property Description
New construction home with 1,479 square feet on one-story including 3 bedrooms, 2 baths, and an open living area. Enjoy an open kitchen with Samsung stainless steel appliances, pantry, and a spacious counter height bar, fully open to the dining caf and gathering room. The living area, laundry room, and baths include luxury wood vinyl plank flooring, with stain-resistant carpet in the bedrooms. Your owner's suite is complete with a walk-in wardrobe and a private en-suite bath with a tiled shower and linen closet. Plus, enjoy a covered lanai, 2-car garage, custom-fit window blinds, architectural shingles, energy-efficient insulation and windows, and a full builder warranty.
Exterior Features

Attached Garage Yn Yes Carport Yn No Construction Materials Block Covered Spaces 2 Direction Faces South Exterior Features Irrigation System Foundation Details Slab Garage Dimensions 18x19 Pool Private Yn No Road Surface Type Paved Roof Shingle Water Access Yn No Water Extras Yn No Water View Yn No Waterfront Feet Total 0 Waterfront Yn No

Interior Features

Appliances DishwasherDisposalElectric Water HeaterMicrowaveRangeRefrigerator Building Area Total 2062 Cooling Central Air Cooling YN Yes Fireplace Yn No Flooring CarpetVinyl Heating Central Heating YN Yes Interior Features In Wall Pest System Laundry Features Inside Levels One Sewer Public Sewer Water Source Public

Property Features

Association Fee 750 Association Fee Frequency Annually Association Fee Monthly Amount 62.5 Association Fee Requirement Required Association Yn Yes Cdd Yn No Down Payment Resource Yes Flood Zone Code x Garage Yn Yes Homestead Yn No Lease Considered YN No Listing Terms CashConventionalFHAVA Loan New Construction Yn Yes Ownership Fee Simple Pets Allowed Yes Property Condition Completed Property Sub Type Single Family Residence Senior Community Yn No Special Listing Conditions None Tax Annual Amount 0 Total Annual Fees 750 Total Monthly Fees 62.5 Utilities Cable Available


Listing information © 2026 My Florida Regional MLS DBA Stellar MLS..
Listing provided courtesy of CAMBRIDGE REALTY OF CENTRAL FL: 863-797-4999.



© 2026 My Florida Regional MLS DBA Stellar MLS. All rights reserved. All listings displayed pursuant to IDX. All listing information is deemed reliable but not guaranteed and should be independently verified through personal inspection by appropriate professionals. Listings displayed on this website may be subject to prior sale or removal from sale; availability of any listing should always be independently verified. Listing information is provided for consumers personal, non-commercial use, solely to identify potential properties for potential purchase; all other use is strictly prohibited and may violate relevant federal and state law. Data last updated 2026-02-18T23:46:30.58.
 
https://bt-photos.global.ssl.fastly.net/mfr/orig_boomver_1_L4946671-2.jpg https://bt-photos.global.ssl.fastly.net/mfr/orig_boomver_1_L4946671-2.jpg https://bt-photos.global.ssl.fastly.net/mfr/orig_boomver_1_L4946671-2.jpg
Logo
United Real Estate Gallery
8380 Baymeadows Road Suite 17
Jacksonville FL, 32256